
| Thông Tin Chi Tiết | |
|---|---|
| Tên dự án | Khu dân cư TDC Hòa Lợi (Golden Boulevard)) |
| Chủ đầu tư | Công ty CP Kinh doanh và Phát triển Bình Dương (Becamex TDC) |
| Vị trí | Mặt tiền đường Lê Lợi, phường Bình Dương, TP. Hồ Chí Minh (Khu liên hợp Công nghiệp – Dịch vụ – Đô thị Bình Dương) |
| Quy mô | 168 căn (84 căn nhà 3 tầng, 84 căn nhà 4 tầng) |
| Loại hình | Nhà ở liền kề và nhà ở thương mại liền kề |
| Phong cách kiến trúc | Khuynh hướng Địa Trung Hải, hiện đại, bền vững |
| Vật liệu chính | Gạch đất nung, vữa xi măng cho tường; kính, khung nhôm, sắt hộp cho ngoại thất |
| Tiện ích nổi bật | Không gian xanh cây cối, đường giao thông nội khu, cảnh quan hài hòa, tiện nghi riêng tư |
| Tiêu chuẩn thiết kế | Tuân thủ tiêu chuẩn – quy chuẩn Việt Nam về công trình dân dụng, an toàn và tiện nghi |
VỊ TRÍ KHU DÂN CƯ TDC HÒA LỢI
Vị trí dự án nằm ngay trung tâm thành phố mới Bình Dương – đầu tàu phát triển đô thị theo định hướng thành phố thông minh, tập trung vào công nghiệp và dịch vụ theo mô hình công nghiệp 4.0, hướng tới nền công nghiệp xanh và bền vững.
Dự án không chỉ góp phần đẩy mạnh phát triển kinh tế – xã hội mà còn đảm bảo an sinh xã hội, cung cấp các công trình phúc lợi dành cho chuyên gia, công nhân tại Khu công nghiệp Vsip 2, Đồng An 2 và Phú Tân nói riêng và cư dân sinh sống, làm việc tại Khu Liên hợp Công nghiệp – Dịch vụ – Đô thị Bình Dương nói chung.
Dự án bao gồm hệ thống các công trình nhà ở đa dạng với hai loại hình chính: nhà ở liền kề và nhà ở thương mại liền kề, với diện tích sử dụng linh hoạt, mang đến nhiều lựa chọn cho cư dân.
Toàn bộ thiết kế đảm bảo tính thống nhất và đồng bộ về hình thức chung, kiến trúc cảnh quan tổng thể, đồng thời tạo nên bộ mặt kiến trúc đô thị hiện đại cho khu vực.
Giới thiệu sơ lược phương án thiết kế
Phương án thiết kế của dự án TDC Hòa Lợi tập trung vào các tiêu chí an toàn, bền vững, thích dụng, mỹ quan, phù hợp với điều kiện khí hậu tự nhiên và đáp ứng nhu cầu sử dụng đa dạng của cư dân.
Toàn bộ mẫu nhà tuân thủ nghiêm ngặt các tiêu chuẩn – quy chuẩn Việt Nam về thiết kế công trình dân dụng, đảm bảo an toàn và tiện nghi cho người sử dụng.
Các công trình được bố trí tạo không gian hài hòa trong từng khu nhà, đồng bộ hợp lý về hình thức mái, số tầng, khoảng lùi giữa các dãy nhà, đồng nhất mặt đứng trên mỗi tuyến đường đô thị để tạo mỹ quan theo tuyến.
Hình khối các mẫu nhà đơn giản nhưng kết hợp chi tiết đặc trưng, đảm bảo tính thẩm mỹ cho từng căn và toàn khu. Đường nét kiến trúc theo khuynh hướng Địa Trung Hải với thiết kế 2 mặt tiền, đường giao thông nội khu giữa hai dãy nhà, mang đến không gian sống hiện đại, thẩm mỹ, tiện nghi và riêng tư.
Vật liệu sử dụng chủ yếu từ địa phương theo tiêu chuẩn, toàn bộ tường xây bằng gạch đất nung và vữa xi măng; ngoại thất bền vững, hiện đại như kính, khung nhôm, sắt hộp, tạo hiệu quả thẩm mỹ gần gũi, nhẹ nhàng. Thiết kế đặc biệt chú trọng cảnh quan cây xanh cho từng mẫu nhà và toàn tuyến phố, tăng cường không gian xanh, yên bình.
Dự án bổ sung đa dạng mẫu nhà với hai loại chính: nhà 3 tầng và nhà 4 tầng, phù hợp với nhu cầu khác nhau của cư dân. Dưới đây là chi tiết các mẫu nhà dựa trên thiết kế concept:
Mẫu nhà 3 tầng (84 căn)
- T3: Diện tích đất 113m², diện tích sử dụng 317m², mật độ xây dựng 60.3%. Thiết kế 3 tầng với gara ô tô, phòng khách, bếp, 3 phòng ngủ, sân thượng rộng rãi.
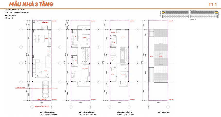
- T1-1: Diện tích đất 102m², diện tích sử dụng khoảng 187m² (dựa trên DT xây dựng tầng 1: 62.2m², tầng 2-3: 62.2m²). Bao gồm gara, phòng khách, bếp, 3 phòng ngủ, ban công thoáng.
- T1-2: Diện tích đất 107m², diện tích sử dụng khoảng 234m² (DT xây dựng tầng 1: 68.3m², tầng 2-3: 68.3m²). Thiết kế tương tự T1-1 nhưng rộng hơn, phù hợp gia đình trung bình.
- T2-1: Diện tích đất 93m², diện tích sử dụng khoảng 227m² (DT xây dựng tầng 1: 64.2m², tầng 2-3: 64.2m²). Gara, phòng khách, 3 phòng ngủ, sân sau.
- T2-2: Diện tích đất 93m², diện tích sử dụng khoảng 230m² (DT xây dựng tầng 1: 64.7m², tầng 2-3: 64.7m²). Tương tự T2-1 với biến thể mặt bằng linh hoạt.
- T2-3: Diện tích đất 93m², diện tích sử dụng khoảng 227m² (DT xây dựng tầng 1: 64.2m², tầng 2-3: 64.2m²). Thiết kế tối ưu không gian, phù hợp nhà thương mại.
Mẫu nhà 4 tầng (84 căn)
- T4-1: Diện tích đất 84m², diện tích sử dụng khoảng 280m² (DT xây dựng tầng 1: 70m², tầng 2-4: 70m²). Gara rộng, phòng khách, bếp, 4 phòng ngủ, sân thượng.
- T4-2: Diện tích đất 84m², diện tích sử dụng khoảng 280m² (tương tự T4-1, biến thể mặt bằng tầng trên). Phù hợp gia đình lớn hoặc kinh doanh.
- T5: Diện tích đất 84m², diện tích sử dụng khoảng 280m² (DT xây dựng tầng 1: 70m², tầng 2-4: 70m²). Thiết kế cao cấp với không gian mở, ban công lớn.
Các phối cảnh 3D thể hiện hình khối trắng tinh tế, mái dốc Địa Trung Hải, cây xanh bao quanh, tạo cảm giác gần gũi với thiên nhiên.
Lợi thế và tiềm năng vị trí dự án Golden Boulevard
Vị trí mặt tiền đường Lê Lợi tại trung tâm thành phố mới Bình Dương mang lại lợi thế vượt trội cho dự án TDC Hòa Lợi. Là “đầu tàu” của Khu Liên hợp Công nghiệp – Dịch vụ – Đô thị Bình Dương, khu vực này kết nối trực tiếp với các trục giao thông huyết mạch như đường NH19 và Tỉnh lộ DT 741, chỉ cách Quốc lộ 13 khoảng 5-10 phút di chuyển.
Điều này không chỉ thuận tiện cho cư dân tiếp cận TP. Hồ Chí Minh (khoảng 30-40 phút) mà còn gần các khu công nghiệp lớn như Phú Tân, VSIP, Sóng Thần, nơi tập trung hàng chục nghìn lao động chất lượng cao.
Lợi thế nổi bật bao gồm:
Giao thông đồng bộ: Đường Lê Lợi rộng 30m, kết nối nhanh chóng với trung tâm Thủ Dầu Một và các tuyến cao tốc, giảm thời gian di chuyển, tăng giá trị bất động sản lên 15-20% hàng năm theo xu hướng đô thị hóa.
Hạ tầng đô thị thông minh: Là phần của thành phố mới Bình Dương – mô hình đô thị 4.0 đầu tiên tại Việt Nam, với hệ thống chiếu sáng LED, camera an ninh, và công viên xanh, đảm bảo môi trường sống bền vững.
Gần nguồn việc làm: Chỉ cách Khu công nghiệp Phú Tân 2-3km, dự án lý tưởng cho chuyên gia nước ngoài và công nhân kỹ thuật cao, với nhu cầu nhà ở tăng 25% theo báo cáo phát triển công nghiệp Bình Dương 2024-2025.
Tiềm năng tăng giá: Với định hướng công nghiệp xanh, khu vực dự kiến thu hút đầu tư FDI lên đến 5 tỷ USD đến năm 2030, đẩy giá đất tăng 30-50% trong 3-5 năm tới, tương tự các dự án lân cận như Becamex.
Tiềm năng phát triển của dự án không chỉ dừng ở giá trị kinh tế mà còn góp phần vào an sinh xã hội, tạo cộng đồng cư dân văn minh, hiện đại, hỗ trợ sự bùng nổ dân số cơ học tại Bình Dương (tăng 8-10%/năm).
Nhu cầu về bất động sản tương thích với dự án Khu Dân Cư TDC Hòa Lợi
Nhu cầu bất động sản tại khu vực phường Bình Dương đang ở mức cao kỷ lục, phù hợp hoàn hảo với loại hình nhà liền kề quy mô vừa như TDC Hòa Lợi. Với dân số khu công nghiệp tăng nhanh (hiện khoảng 200.000 lao động, dự kiến 300.000 vào 2030), nhu cầu nhà ở giá trung bình (2-4 tỷ/căn) cho gia đình trẻ và chuyên gia chiếm 60% thị phần, theo báo cáo CBRE 2025. Các yếu tố thúc đẩy:
Thiếu hụt nhà ở chất lượng: Chỉ 40% nhu cầu được đáp ứng bởi các dự án hiện hữu, dẫn đến giá thuê tăng 15%/năm; nhà liền kề như TDC Hòa Lợi với thiết kế xanh, tiện nghi sẽ thu hút 70% khách hàng là nhà đầu tư, chuyên gia làm việc trong KCN.
Xu hướng sống xanh, thông minh: Cư dân trẻ (25-40 tuổi) ưu tiên không gian riêng tư, gần việc làm, với tỷ lệ mua nhà tăng 20% so với căn hộ chung cư.
Tương thích đầu tư: Với lợi suất cho thuê 5 – 9%/năm và tiềm năng tăng giá, dự án phù hợp nhà đầu tư dài hạn, đặc biệt khi Bình Dương sau sáp nhập được định hướng trở thành “thung lũng Silicon” của Việt Nam với công nghiệp 4.0.
Tóm lại, (Golden Boulevard) không chỉ là nơi an cư lý tưởng mà còn là cơ hội đầu tư sinh lời bền vững trong bối cảnh đô thị hóa mạnh mẽ tại Bình Dương.




















Nhung –
Tiềm năng BĐS dòng tiền